The industry’s FIRST battery powered residential elevator
The residential elevator virtually eliminates concerns regarding power outages. The unit can run multiple trips (10+), in BOTH directions, on its own batteries.
Residential Elevators
Click on the categories below to learn more about our Residential Elevators.
Key Features
- Compact design with small footprint
- Installs against any wall – even non-load bearing
- No elevator pit or machine room required
- Designed specifically for retrofitting into homes
- Sliding radial door eliminates need for “swing out” space
- Adds value to your home
- Minimal construction required – cut a hole in the floor
- No special wiring required – runs on household current
- Runs in BOTH directions if power fails – battery operation
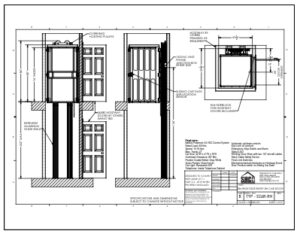
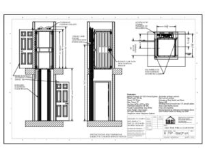
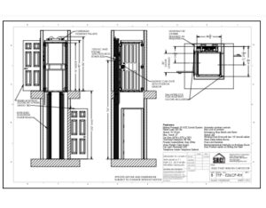
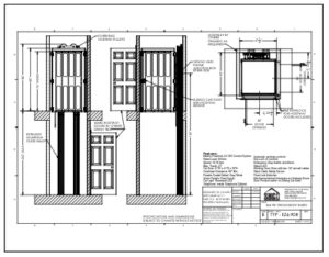
Planning Guides & Typical Drawing Downloads
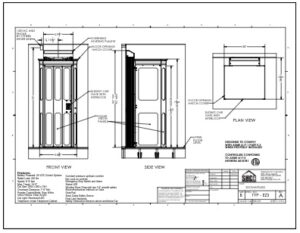
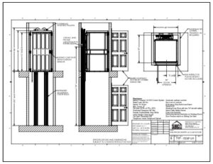
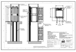
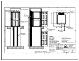
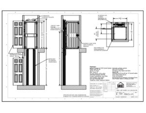
TYP-EZ3 – Shaftless Front Entry – Small

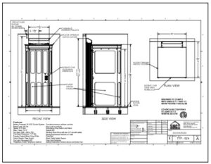
TYP-EZ4 – Shaftless Front Entry

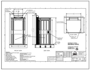
TYP-EZ5R – Shaftless Right Entry

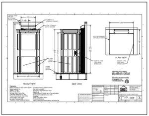
TYP-EZ5 – Shaftless Straight Thru Entry

TYP-EZ6F-LH – Hoistway Front Entry Left Gate slide

TYP-EZ6CF-LH – Hoistway Front Entry Left Gate slide – Compact

TYP-EZ6F-RH – Hoistway Front Entry Right Gate slide

TYP-EZ6CF-RH – Hoistway Front Entry Right Gate slide – Compact

TYP-EZ6L-LH – Hoistway Left Entry Left Gate slide

TYP-EZ6CL-LH – Hoistway Left Entry Left Gate slide – Compact

TYP-EZ6L-RH – Hoistway Left Entry Right Gate slide

TYP-TYP-EZ6CL-RH – Hoistway Left Entry Right Gate slide – Compact

TYP-EZ6R-LH – Hoistway Right Entry Left Gate slide

TYP-EZ6CR-LH – Hoistway Right Entry Left Gate slide – Compact

TYP-EZ6R-RH – Hoistway Right Entry Right Gate slide

TYP-EZ6CR-RH – Hoistway Right Entry Right Gate slide – Compact

TYP-EZ6P-LH – Hoistway Straight Thru Left Gate slide

TYP-EZ6CP-LH – Hoistway Straight Thru Left Gate slide – Compact

TYP-EZ6P-RH – Hoistway Straight Thru Right Gate slide

TYP-EZ6CP-RH – Hoistway Straight Thru Right Gate slide – Compact

TYP-EZ6-90L – Hoistway 90 degree Entry Left

TYP-EZ6C-90L – Hoistway 90 degree Entry Left – Compact

TYP-EZ6-90R – Hoistway 90 degree Entry Right

TYP-EZ6C90-R – Hoistway 90 degree Entry Right – Compact






